Barcelos

Descrição:

As nossas lindas cabanas /casas de madeira são de alta qualidade e oferecem um espaço ideal tanto para viver, alugar ou para visitas, dando um estilo rustico ou moderno. São lindamente feitas de madeira seca, mas não pintada e não impregnada, proveniente de pinho/abeto nórdico de alta qualidade, de crescimento lento e cuidadosamente trabalhado. Complementam qualquer jardim ou terreno e são todas muito versáteis e elegantes. Todos os nossos modelos já vêm com janelas e portas e todas com vidro duplo ja incluído.

Sizes:

Especificações

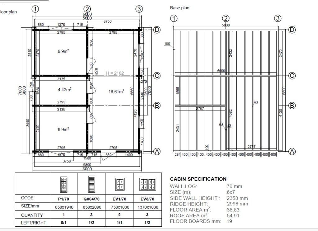
  • Troncos de 68mm, Abeto T&G, Madeira de Abeto;
  • Altura da cumeeira – 3,037m;
  • Altura da parede – 2,363m;
  • Dimensões externas – 6x7m;
  • Tamanho da base – 5,784 x 6,804m;
  • Área interna – 36,80m²;
  • Área do telhado – 62m²;
  • Divisórias internas de acordo com o desenho + 3 portas internas;
  • Porta simples, metade envidraçada, abrindo para fora;
  • 3 janelas duplas, abrindo para fora;
  • 2 janelas simples, abrindo para fora;
  • Vidro duplo, junta de borracha para estanqueidade;
  • Cozinha/Sala de estar – 18,60m²;
  • Casa de banho/WC – 4,24m²;
  • Quarto 1 – 6,99m²;
  • Quarto 2 – 6,99m²

Incluído:

  • Tábuas de telhado, junta de entalhe, min 18-20mm;
  • Tábuas de chão encaixe, min 18-20mm, podem ser encaichadas pelo proprio;
  • Fechadura de cilindro para maior segurança nas portas;
  • Dobradiças ajustáveis para janelas e portas;
  • Pregos e parafusos para instalação;
  • Instruções de instalação;
  • Vigas de fundação impregnadas contra o apodrecimento

Notas:

  • As cabanas são fornecidas desmontadas e podem ser montadas pelo o proprio;
  • O serviço de instalação tem custo adicional;
  • Construção leve de telhado, adequada para telhas de betume, etc. – se pretende utilizar outro tipo de cobertura de telhado, por favor contacte-nos para obter informações adicionais;

    Contacto